333.9693631
serappino@hotmail.it
Home
Profilo
Servizi
Prestazioni professionali
Gallery
Contatti
Tu sei qui
Home
» 07. Italia. Restauro del Palazzetto Brancaccio, Civico Museo d'Arte Moderna, Anticoli Corrado, RM
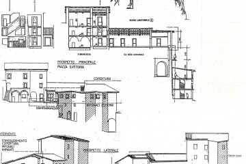
07. Italia. Restauro del Palazzetto Brancaccio, Civico Museo d'Arte Moderna, Anticoli Corrado, RM